
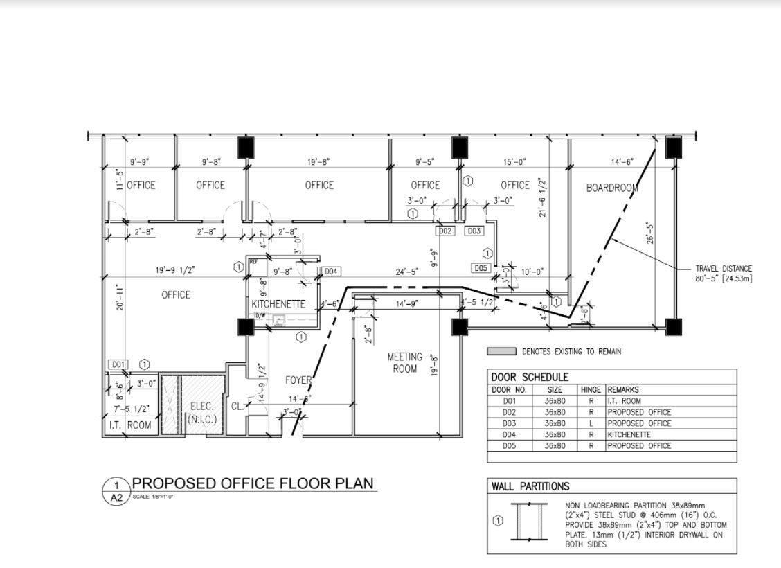
BOLD Engineering Inc. provided Engineering Services for an office renovation for MCI Medical Clinics Inc. at their Yorkdale Mall location managed by Oxford Properties Group.
BOLD Engineering Inc. was pleased to be part of this project and we enjoyed working with MCI Medical Clinics Inc.. on this project.



